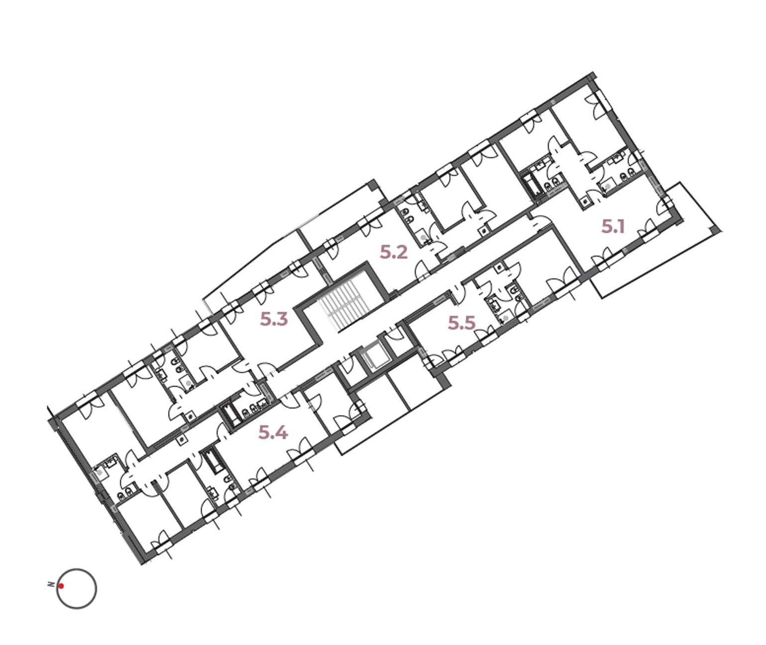
Quinto piano
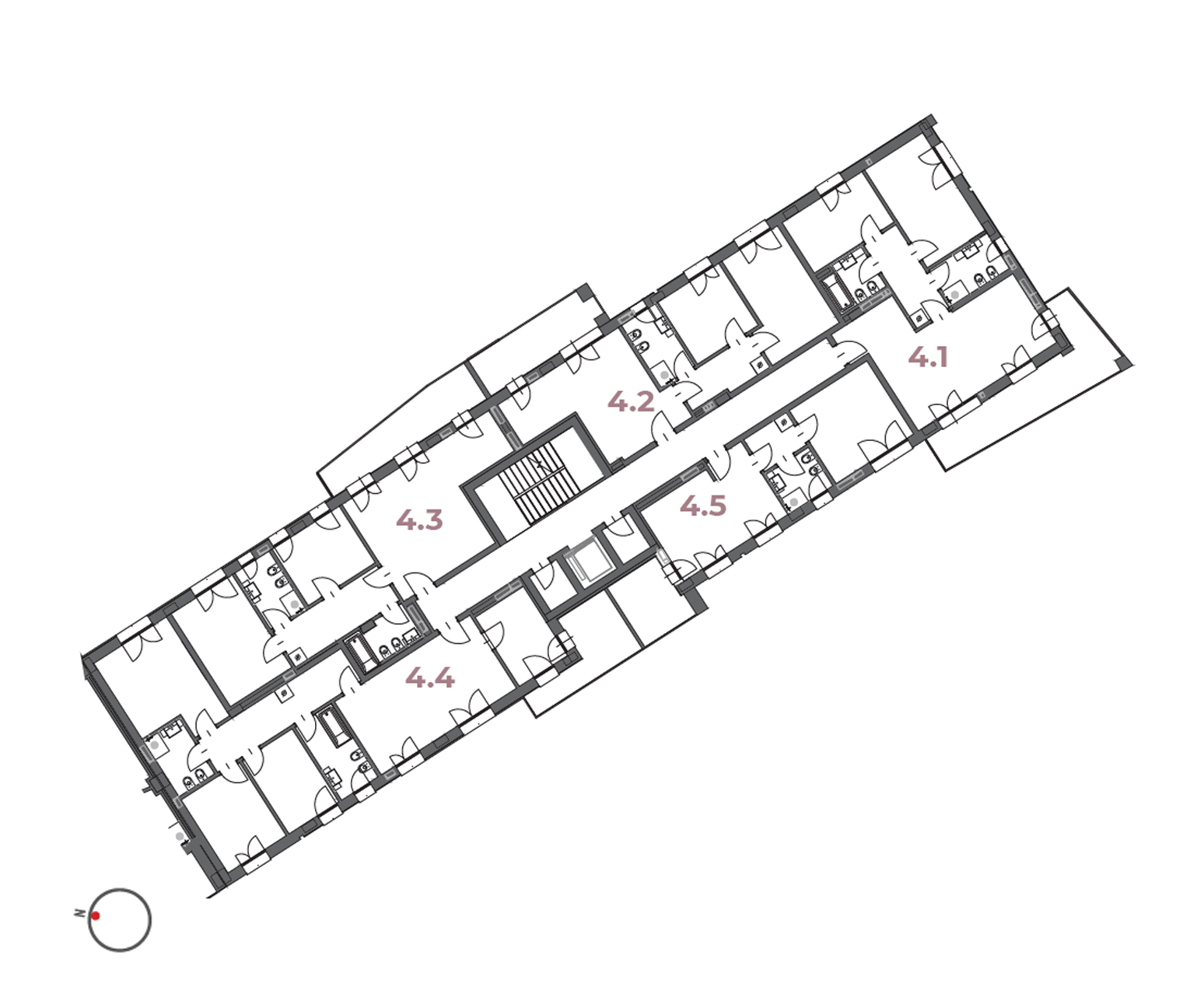
Quarto piano
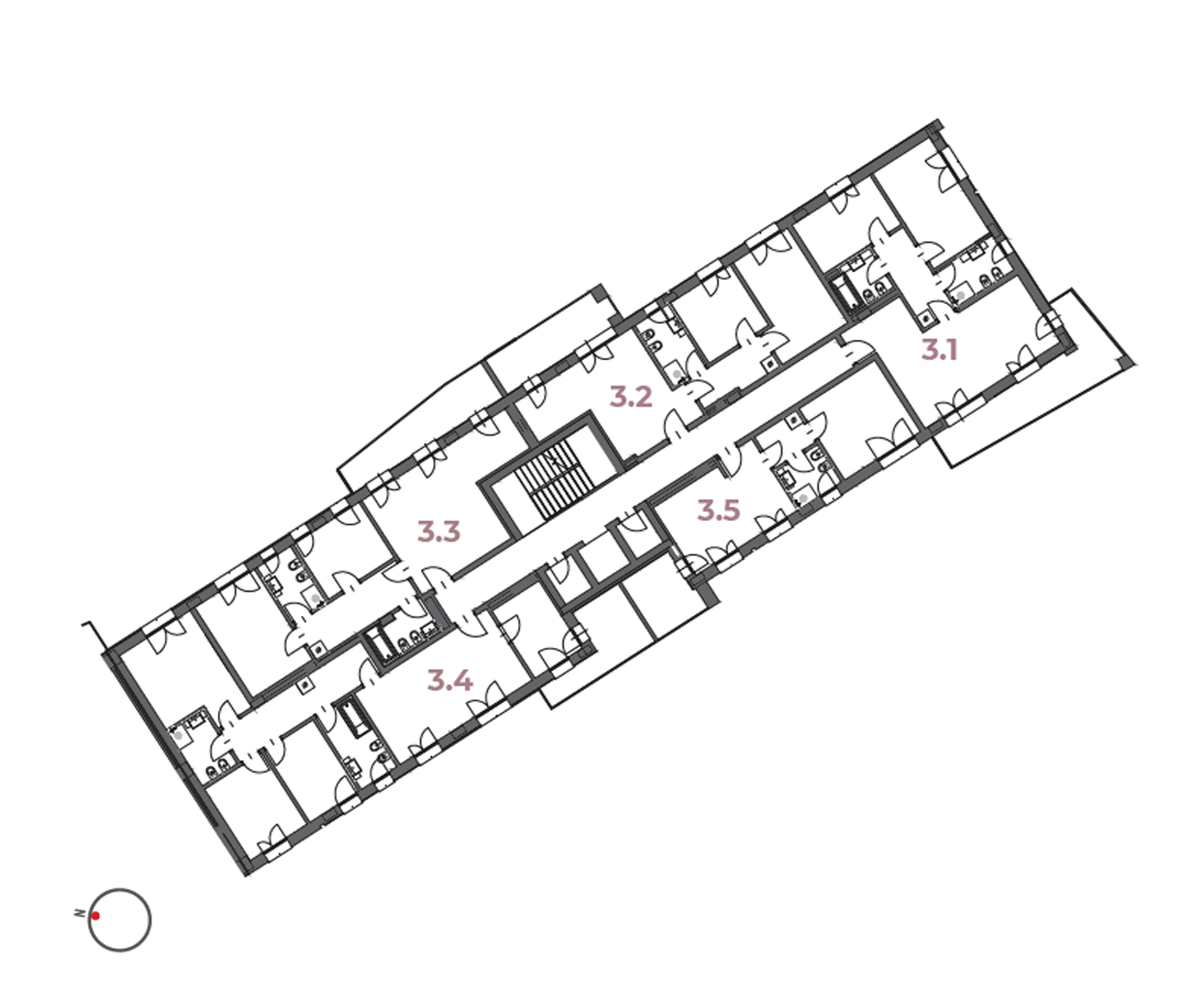
Terzo piano
Secondo piano
Primo piano
Piano terra
EDIFICIO C4