Settimo piano
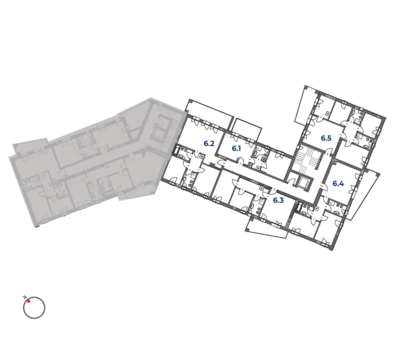
Sesto piano
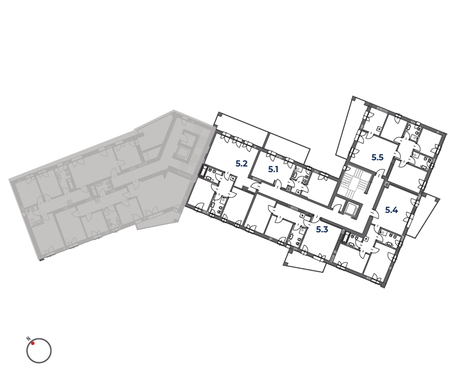
Quinto piano
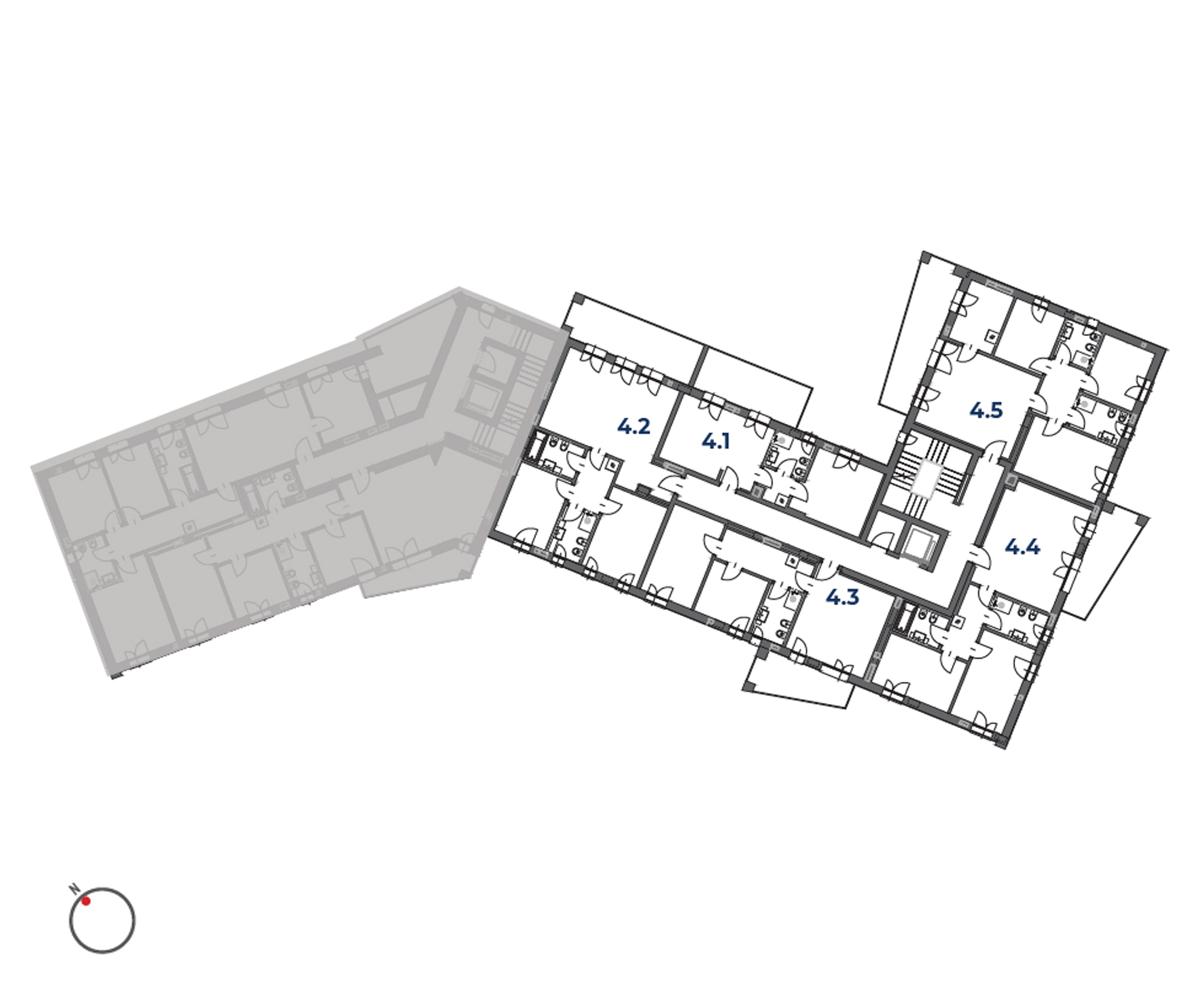
Quarto piano
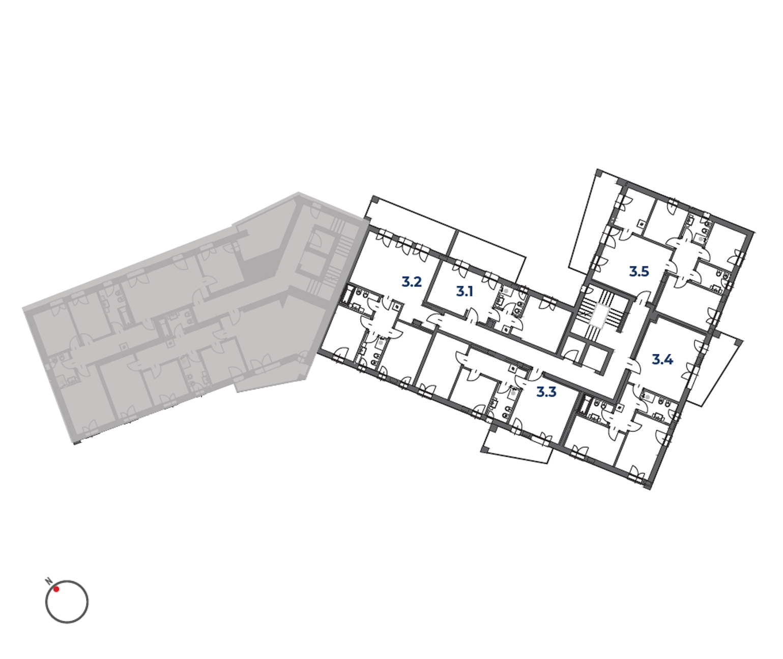
Terzo piano
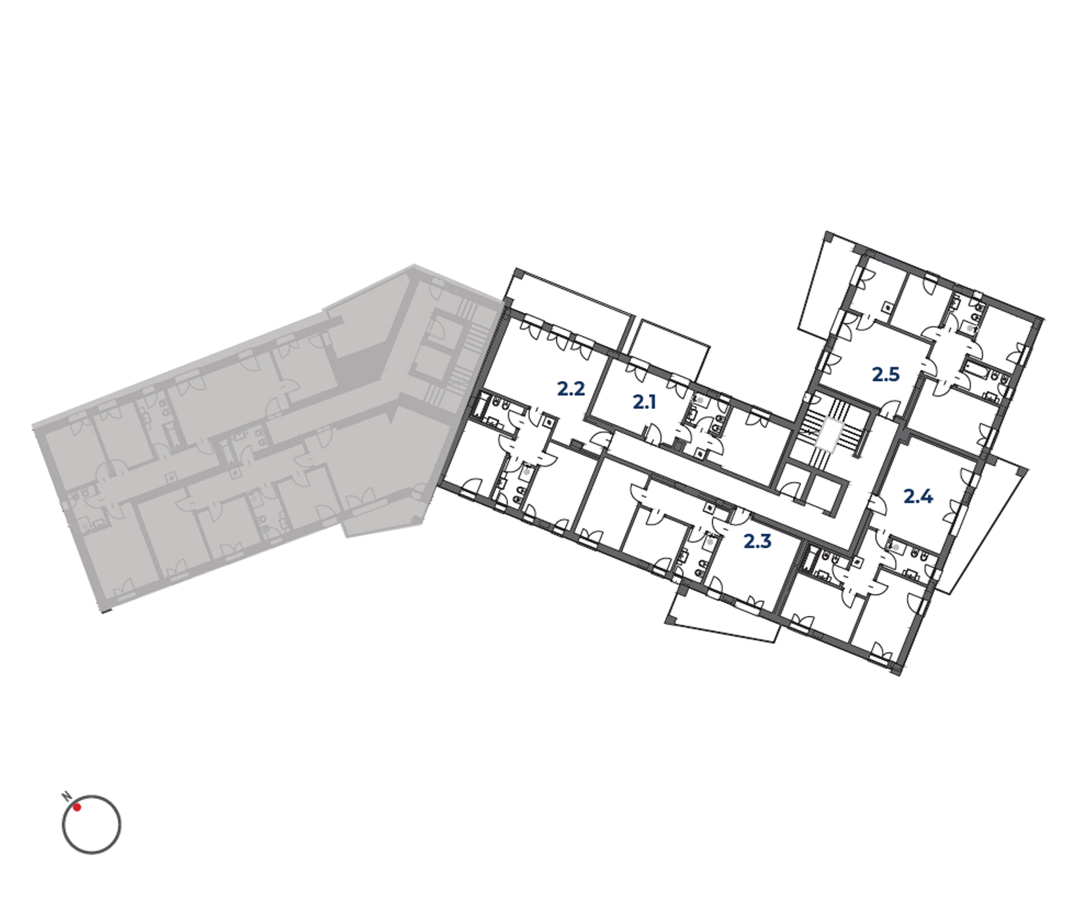
Secondo piano
Primo piano
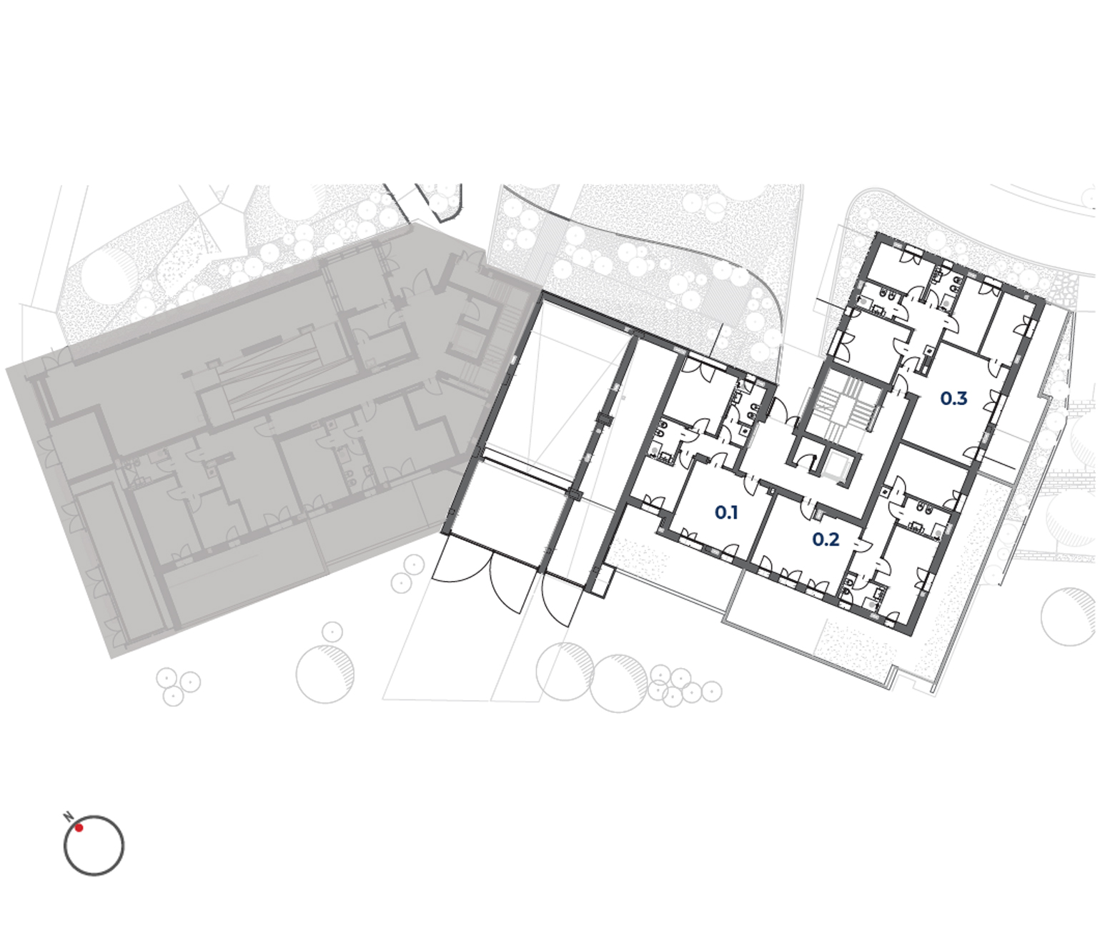
Piano terra
EDIFICIO L1